Modern Edge Apartments

2024

University of Maryland

The Modern Edge Apartments resides on the southwest corner of H Street NE and 12th Street NE, DC. The design strives to advance the existing DC city environment while also creating a unique image.

The residential floors are offset from the commercial ground floor in order to create a powerful experience for people in and out of the building.

a modern urban retreat.

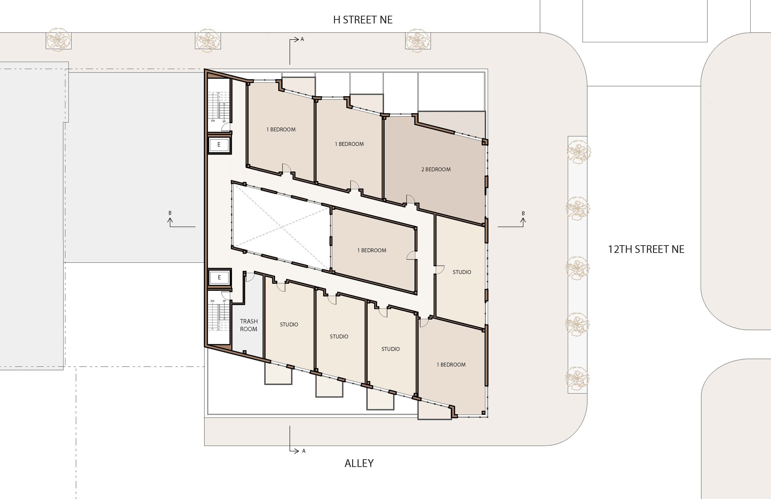
Residents have access to many amenities including a central courtyard, a clubhouse, a fitness center, a public terrace, and private balconies. Overall the apartments support the city lifestyle while along providing comfort and flexibility for residents. The Modern Edge Apartments architectural design presents a modern urban retreat that embodies the essence of contemporary living in Washington DC.

Project Type
Residential / Commercial / Mixed-Use / Apartments

Project Location
Corner of H St & 12th Street / Downtown Washington, D.C.

02

Next Project

04

05

06

07

01 ground floor plan / 02 typical residential floor plan / 03 section a / 04 section b / 05 studio unit plan / 06 1 bedroom unit plan / 07 2 bedroom unit plan

01

03